• chaos-glyph
  • 1865b4_6f557756dc684e5ea59ae04d6a7b0084~mv2
  • 1865b4_573e20a0c8694f4d99ec309a8f6ccb90~mv2
  • 1865b4_a92ef132687b471daa460b9fba5dffe7~mv2
  • 1865b4_4e60fd193d6b4cb6a675e2a210114c36~mv2
1

Chaos

Chaos Glyph

僅限台澎金馬地區 | 朕宏國際實業有限公司
僅限台澎金馬地區
安全付款 | 朕宏國際實業有限公司
安全付款
正版商品 | 朕宏國際實業有限公司
正版商品
我們提供最新版產品 | 朕宏國際實業有限公司
我們提供最新版產品

產品描述

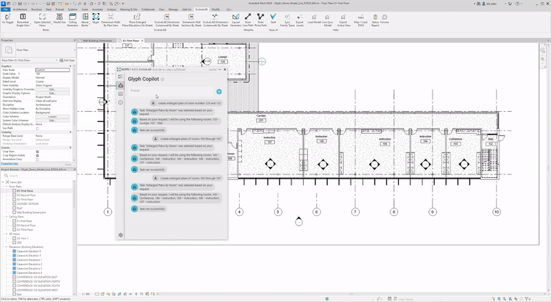
Chaos Glyph:Revit 自動化文件編制外掛,提升效率與一致性

Chaos Glyph 是一款專為 Revit 使用者設計的外掛工具,用以自動化與標準化文件製作流程。它能自動處理多種繁瑣工作,如檢視 (view) 與圖板 (sheet) 建立、標記 (tagging)、標註尺寸 (dimensioning)、圖板配置 (sheet packing) 等,並支援自訂 Bundles(任務束組),讓流程重複執行變得快速又一致。

1_Chaos-Glyph2_Chaos-GlyphChaos-GlyphRevit

最新版本

了解更多

系統需求

CPU
  • 符合 Autodesk Revit 建議的中高階多核心處理器
顯示卡
  • 符合 Revit 視覺化需求的顯示卡,建議使用具備專業認證的 NVIDIA/AMD GPU
RAM
  • 至少 8 GB,建議 16 GB 或以上
作業系統
  • 需搭配支援的 Windows 系統版本(例如 Windows 10/11),符合 Revit 的安裝要求。
硬碟空間
  • 需具備足夠 SSD 儲存以應付 Revit 與專案檔案需求